4 January 2024
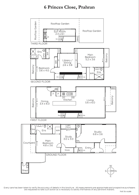
Some more mid rise infill, looking like a bit a Tokyo from this angle, behind Chapel Street, on Princes Close. Almost cute, but a bit blocky. Took me a minute to realise there’s two. The left one has a long side facing the park, and seems to be spacious enough. Plan is of a rear unit. The one on the right turns out to be just one house, 2nd plan. Theres also a proposal for another taller one to go on the right.







