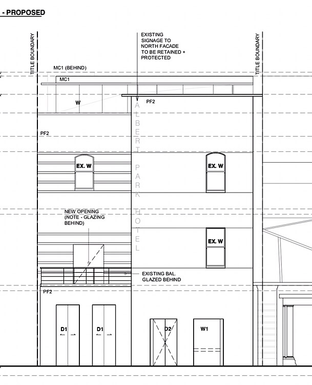
The #AlbertParkHotel, yet another case of #facadism, but at least you can’t tell. And it looks like there wasn’t much inside to tell of it’s history, having been altered many times, the first being a 1930s #Moderne makeover of the Victorian original. But being so picky like I am, they could have retained some of the the actual probably Victorian timber floors ? And set that top level back a bit more so you couldn’t see it ? And why not actually recreate the 30s look ? Two-tone paint, and great big sign ? I think the exisiting Deco sign which is described as ‘heritage’ is prob 1990s from the award winning #AllanPowell renovation ! The @cityofportphillip planning report doesn’t even acknowledge that only three walls are kept, or note anything about the original 1930s appearance.
At least it’s going to be a pub again, and then three floors of offices for the Colonial Leisure Group, who own this and many other pubs.





Photo Allan Powell website
