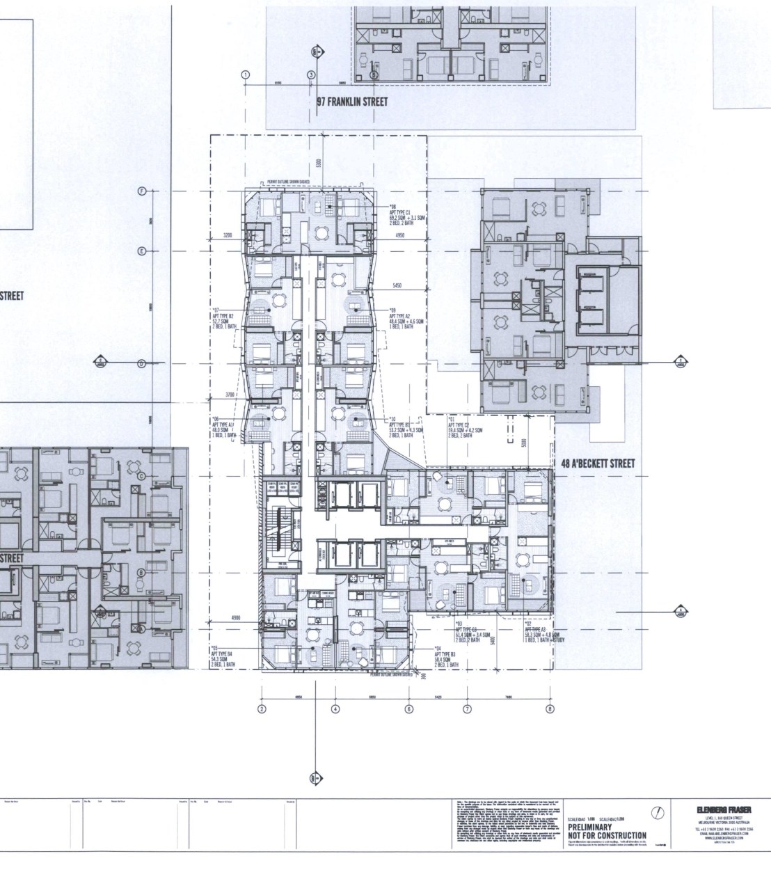
This is one of the craziest things to get built as part of the early 2010s avalanche of approvals under #MatthewGuy as Planning Minister. Its sort of L shaped fitting an L shaped site, where there was a permit for an opposite L shaped one to the right of the first photo, so loads of apartments would be looking straight at each other 10m apart. Round the other side, on #AbeckettStreet, the angly #MY80 tower actually leans out over the 4m lane between the two buildings ! So this one presents a black wall to the apts on that side, but at the lower levels they’re like 2m apart ! This tower was first approved in 2010, at 80 floors, which lapsed I think, then the 2014 version was made shorter and with more amenity (ie common rooms) – the @cityofmelbourne report said ‘terrible’ , should have more setbacks, but also ‘better than previous one’, while the Ministers Office report just said ‘better than the previous one and minimum setbacks provided (ie 10m between towers)….ensuring reasonable light and aspect’ when of course if / when other towers are built around it the only view will be other towers. A bit like global warming we’re just going to have to live with it now. At least currently most residents do have long views, judging by their Instagram posts. It’s called #AvantMelbourne, designed by @elenberg_fraser, and I do like the colour and that in plan it’s quite wiggly, though the interesting diagonals struts are just stuck on, just more patterning, not structure, but I guess nothing wrong with that. And nice they decorated the 56 storey blank part wall too.







The 80 storey scheme
