Original post 17 July 2020
Time for my annual pilgrimage to see Finn Barr, in Cecil Street, #SouthMelbourne in winter, this time with my wide angle. Here’s what I said in 2017: Built in 1885 for local doctor WH Ford, who obviously wanted to make a statement! A #terracehouse with a facade and tower worthy of a #victorianmansion. With an attached more typical terrace house to one side. Architect #FrederickDeGaris, who did a few rather #ornate houses in the Sth Melb-St Kilda area. Presumably Dr Ford was Irish, naming his house after a 6th century Bishop of Cork, later a saint. Also, poor tree placement – a bit further to the right ‘wood’ have been better, or allowing it to grow up instead of either side of the power lines. Historic image @library_vic. HV listing here.


These photos are from July 2018: 

From 14 March 2017: 


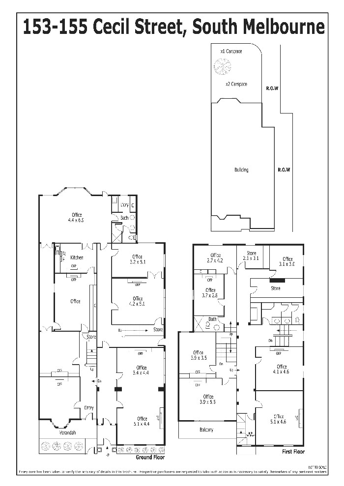
And only now in 2023 looked up real estate ads – last sold in 2005, with this plan, showing that it’s offices and so is the attached terrace. 
And there’s a couple of photos of the terrace in a lease ad 
