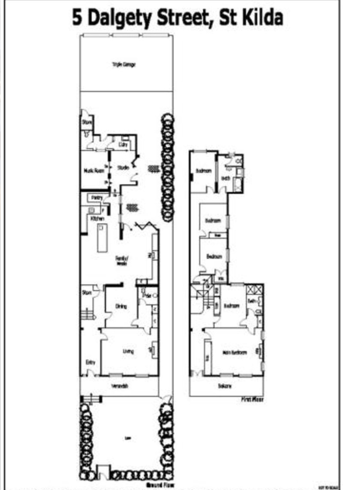
A fine early house mostly hidden behind a tall fence and lovely garden in my street. Might be 1850s, maybe a bit later, prob built with the house next door (even more obscured), but they have different verandahs – I think this one likely the original or at least early one. Last sold 2004 for $1.35mill.




