Repost this day 2018:
Another case of that St Kilda thing- transformed #TerraceHouses; originally Queens Terrace, built 1880s, two of them converted to one huge #guesthouse in 1941 by #WHMerritt. Curiously solid balconies, rather blocks the view of the bay across the road ! Also v unusual having been 4 storey terraces originally (there’s a semi basement). Sadly the other 3 dem c70 for flats – must’ve looked odd with only two of the 5 altered like this. Some people love the 40s look, others hate it. It’s certainly impressive.
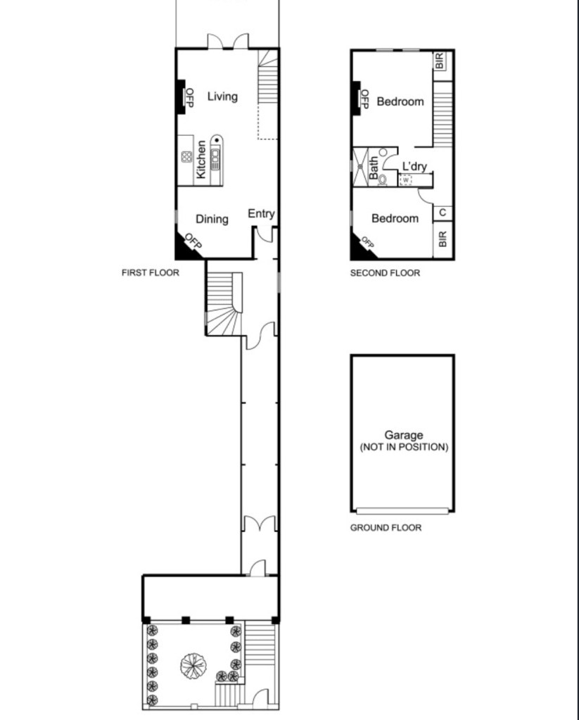
Behind the chunky bricky balcony the Victorian details are still there, like the fab rear stair, seen in various real estate ads. A comment on my Instagram tells me that they were bought by a family in the late 80s, renovating one for themselves, as a single 6 bed house, the other as 4 flats.







