26 July 2018:
Repost 2018, updated : Little Milton, 1926; an impressive Toorak mansion, not little at all ! Built c1926 in Old English style in Albany Road for SJ Moran of Moran & Cato grocers. Didn’t realise that it was notable not only as a fine design, but because it was by a ‘woman architect’, Miss Muriel Stott (though Stephenson & Meldrum helped). She was possibly our first solo female architect, starting her practice in 1917, but she seems to only have done modest houses, and nothing after this (and got married in London in 1931 then settled in South Africa). It was featured in Home Beautiful in 1928, showing the interiors were pretty restrained. The garden was also designed by a woman, the prolific Edna Walling, preserving two trees. I think the one on the right still there.
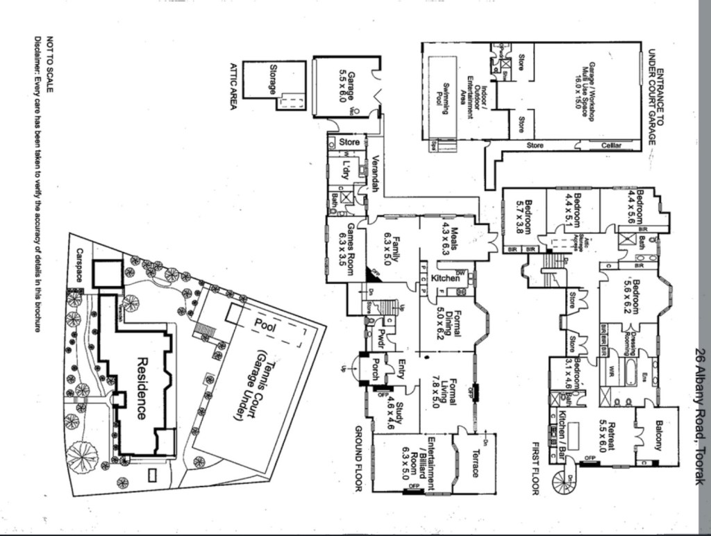
It was sold in 2012 for $12m, just after the 12 car garage under the tennis court was built. then again in 2022 (pics 4,5) for about $28mill !
Toorak in winter is a marvel, all the mansions visible behind the bare trees; but far far too many quite recent ‘French Provincial’ or poorly proportioned Neoclassical rubbish. More money than sense as my mother used to say !















