Pics 2024, words from 2019:
Marion Terrace in Burnett Street St Kilda, 1883, always a fave, and a bit of a surprise in a street of Vic and Edw villas and postwar flats. Presumably the developer here thought just being grand 10 room #terracehouses in #StKilda wasn’t enough, they needed something extra – they’re up the hill so maybe you could see the bay from up there ? At some point in the 1960s someone bought two of the 8 at the far end to replace with a rather mundane block of flats ☹️ Surprisingly the architect isnt known. Might be #NahumBarnet, might be #MichaelEgan, or neither.
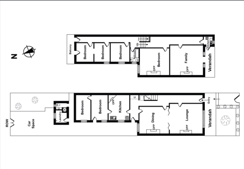
2021: Great pic from #stkildahistoricalsociety from the 70s perhaps when the verandahs still glassed in, and a plan of no 18 when it sold in 2012, looks like it was at least two flats; other interiors from more recent sale of no 22. Relatively plain inside given the grandeur outside. Sorry no pics of tower room, can’t even see the stair. 1st 4 pics 2024:












