6 September 2019:
Anyone remember The Secret Life of Us ? This c1928 block in #AclandStreet was where half of them lived. Having a popular TV series set in a suburb that was once cheap where the characters are young lawyers and doctors, well, it means you’re being priced out ! Then I moved to Fitzroy, and then they started filing Offspring !! Lucky I made an investment purchase a long time ago…. date and designer not listed in the local heritage study.
2021 update : it’s on Netflix and plenty of you have watched the whole thing recently – I never got past season 3 I think, not planning to rewatch.
Pics 2025







Pics 2019


2025 update :
It was built in 1927, designed by Gordon Sutherland, and it’s plain but impressive, with all that roughcast render that’s never been painted. At some point the many balconies were glassed in.
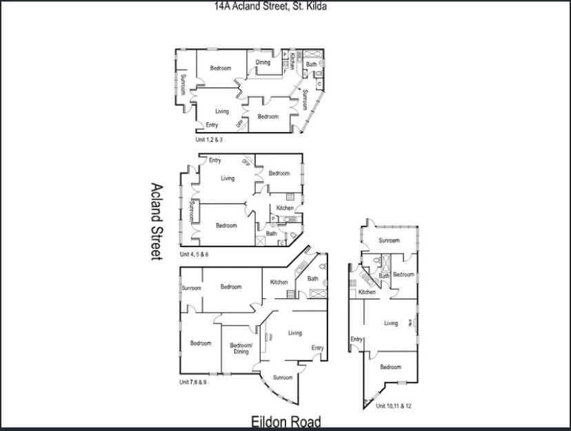
It sold as a whole block in 2008, so there’s plans of the whole thing – lots of squeezy angled little kitchens – and it’s still all rentals. Can’t find any architect. It’s called Inverleith Court, named after the 1860s mansion it was built in front of. The house kept its ballroom out the back, two street frontages, and was already a guest house, with tennis court etc. – which apparently attracted ‘confirmed bachelors’, sounds fine to me 😊 When the flats were first advertised in 1927, they were part of the guest house, with a free maids service, as well as use of the restaurant, tennis court etc.
Some Tudor style flats replaced the north end of the garden in 1939, but the house stayed on until finally demolished for a motel in the 1960s; there’s a photo of the ballroom being demolished, showing it had exotic Moorish arches.
Mansion pic @historical_stkilda, layout from the book on Acland St and demo pic from the recent book on St Kilda’s wealthy elite in the 19thC.










2025 comments



