20 October 2023
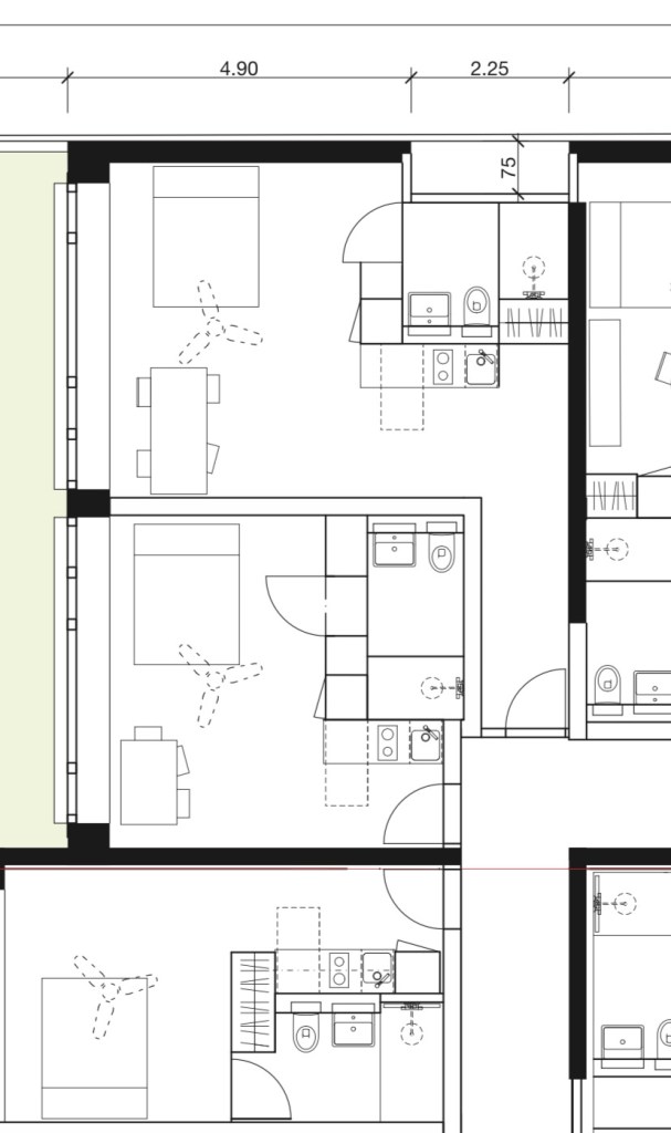
This development proposal in Brunswick made the news last week because its mostly studio apartments, mostly 22.5sqm. Merri-bek Council said no, too small, VCAT said yes, but make them 24.5sqm, and make sure they have enough light. We don’t have minimum apartment sizes in Victoria, whereas in Sydney it’s 35sqm, and London 37sqm. I think there’s a place for studio flats but I’d suggest there should be a minimum size guide, and a requirement that they should be arranged so that there’s room for the bed, maybe in a recess, and room for a lounge / tv area (or do people really make sofa beds work?). The developer Nine Buildings point out that Cairo flats in Fitzroy are 24sqm, but they mostly face north and have little balconies looking into gardens (last image). They also say this is one solution to the housing crisis, but it’s not much of one if you ask me. I don’t have a well thought out solution myself, but it would involve requiring developers to include social or low income housing, changing the tax system, and fixing the planning system. The State Government just taking control of major developments isn’t going to make any difference. Be interesting to see if this one actually sells, and if they make a profit.




