19 December 2024
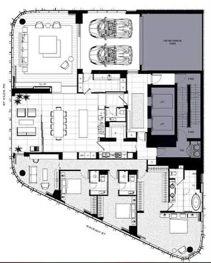
Latest super luxury apartment tower on St Kilda Road down the bottom end rather oddly bulges outwards from its base, which is also set a bit below street level. It’s by @rothelowman and reminds me of a number of (unbuilt) projects by Zaha Hadid (last 3 pics); they’ve channeled her style before. Unlike those where what you see is the structure, this one just has applied strips, but it’s a nice enough effect. It’s a small site with one large flat / floor, and another selling point is that you put your car in a lift and have it sitting next to the lounge. 🤔 Saves on building basement parking, but they’ve got some of that too. It’s not quite finished; one of the tradies said ‘do you like it?’ I says ‘it’s ok’, and he just laughed. Oh, and it’s called Neue Grand 🙄










