7 July 2025
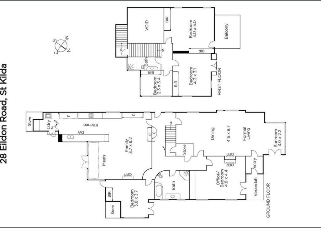
This Spanish style house in Eildon Road stands out for its scale, at two storeys when most in the style are just villas. There’s a cute upstairs loggia with barleycorn columns, and rounded roof tiles.
There’s more interesting details, but obscured by the vines, so I was rather surprised to see in the sale pics from 2018- the inside is great ! Even more Spanish, with a big fireplace with beautiful tiles, a beamed ceiling, and the stair rising around over a columned inset, and that bathroom ! (A follower says she grew up there, and the bathroom then had the original sink too).
It all reminds me of some of the 1920s Hollywood houses of the stars, which would be the inspiration. It’s called Granada (of course), and was built in 1928, designed by FD Meadows.







