14 August 2025
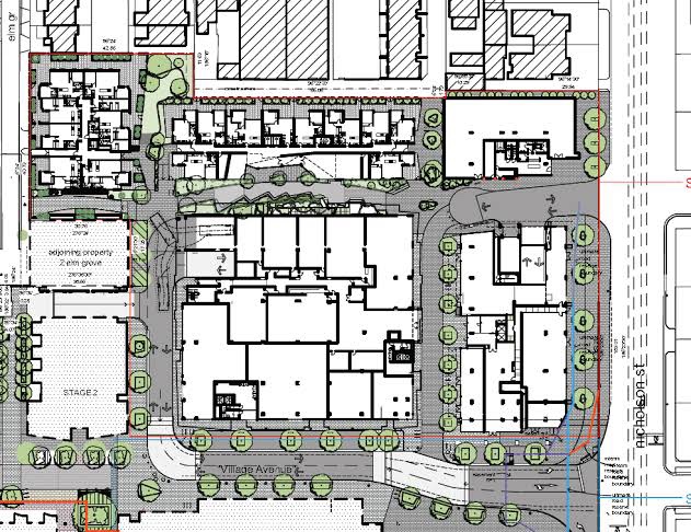
Happened to go to this place for lunch – it’s on Nicholson Street, and called East Brunswick Village, and it’s a huge development, and it’s not bad ! I like the architectural expression in particular, lots of brick and tiles and textured precast too, and it’s all by @jam_architects, they’ve managed to make each building look quite different.
There’s a sort of street running through, it’s lined with shops, including a biggish supermarket; the street just leads to the carpark, so maybe they could have had no cars through, but then a few cars actually add a bit of life and movement.
There’s 4 blocks, with I think 6 more to come, and I’m a bit surprised they’re only 6 floors, not 10 or more. Planning started way back in 2012, and the first block completed in 2019, so I guess well before the latest state government policies.
I read it’s got good thermal performance, and there’s amenities on the roof, and it’s on the 96 tram, and near the Merri Creek, so ticks many boxes. My only quibble is that some blocks are U shaped and so some flats look at each other, and they’re not exactly spacious, but at least you know what you’re getting.













