23 August 2025
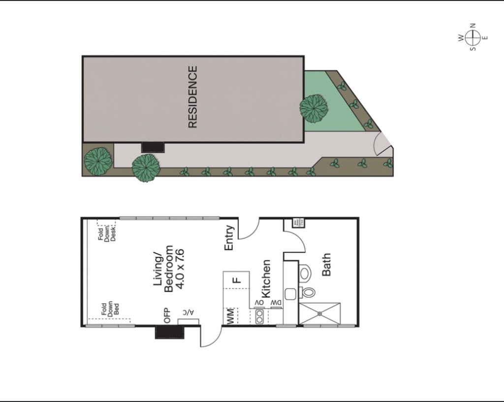
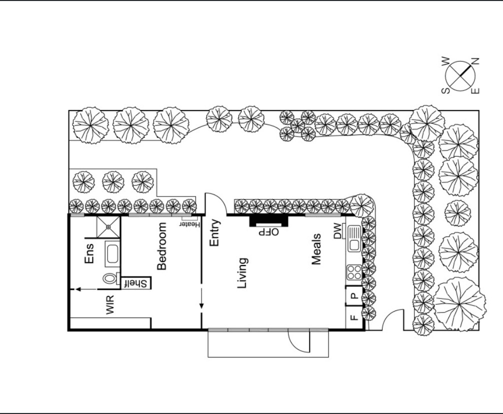
Something that looks very 50s, but it’s actually 1940/41 – it’s a set of studio flats called Clendon Corner by Roy Grounds, on the corner of Malvern Road and Clendon Road Armadale – and looks much better in the old B&W pics than it does now, though actually not much changed, except the stairs.
Built in two stages, the first one to the south round a courtyard, the second more back to back, but they’ve all got large windows, some with their own courtyards. One still has/had its original fold down bed, while another one has moved the kitchen to create a bed space. As an article at the time said, ‘suitable for one or two people’. The 2nd block still appears to all be rentals.
























A recent publication on Grounds ‘experiments in minimum living’ explains the timing of these flats in his career. Having had success in the early 30s with Geoffrey Mewton, his practice stalled in 1938 following an affair with a clients wife (who he soon married), and time they then spent in England, returning in late 1939. The commission for these flats in early 1940 was his first, and quickly followed by the second section (for a different owner), and Moonbria and Quamby in Toorak, all studios or small flats.