October 2025
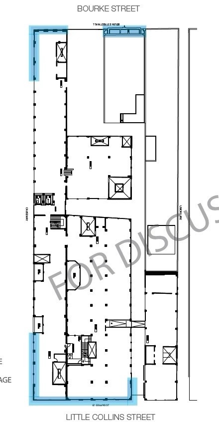
The all new Melbourne Walk development on Bourke Street, which looks very nice, does all the right things – except that only facades and some side walls were retained from the 5 heritage buildings there before (blue bits on the plan, and I’ve got some before pics interspersed). They were abandoned above the horrible ground level arcade, but more could have been retained.
However what they did build is very nice, by @buchan_studio, with restored facades, and new facades that are the same heights, on the mall side they’re stylised versions of whats next to them, could have been more creative, but I’m not complaining. A plain 50s glass building was demolished, and on the Little Collins side, they also demolished one old building, but it was a mish-mash, and the replacement is fine, in fact I like the red tiles with rectangular windows. The new facades on The Causeway are suitably textured, but they’re just rectangular windows like the old facades…
Union Lane down the other side was once a fun squeezy graffiti-laden thing, now it’s wider to allow for deliveries, that’s ok. Which opens through into the new arcade, which is very spacious, cross shaped, double height, skylights, not lined with shops though, didn’t feel like an arcade really – perhaps in fact its mainly to provide access to the pair of hotels that was the point of the development, a Holiday Inn and a Hotel Indigo. I didn’t try going up the escalators. I did notice the Pop Mart had queues, the latest toy merch craze I guess.
One last gripe, they didn’t reinstate the top cornice removed from the taller mall frontage facade, the Public Benefit Bootery.



















