November 2025
A bunch of interesting houses all 1880s-1900s, all in one block of Albert Park, starting with the turreted house on the corner of Canterbury and Kerferd, note remnant tuckpointing. Then that house along Canterbury with the dummies and good polychrome brick, then some Gothic flavoured cast iron, and a fine villa with stripes and blocked colour too. Then a very perky Edwardian turret and two-tone brickwork.
Then back to Kerferd the most stripey house of all, in fact that I’ve ever seen, then a set of five very elaborate terraces, the middle one with a tower, and some great cast iron a lot like actual lace. Then a set of three villas stepping forward with the angle of the street.
Then a very curvaceous Edwardian long neglected, now with severe haircut out back.
And back on Canterbury the next block, a huge rose bush and some cast iron with the Aesthetic movement flowers picked out, and lastly some excellent cast iron, bolder than most and creating an arched effect.


















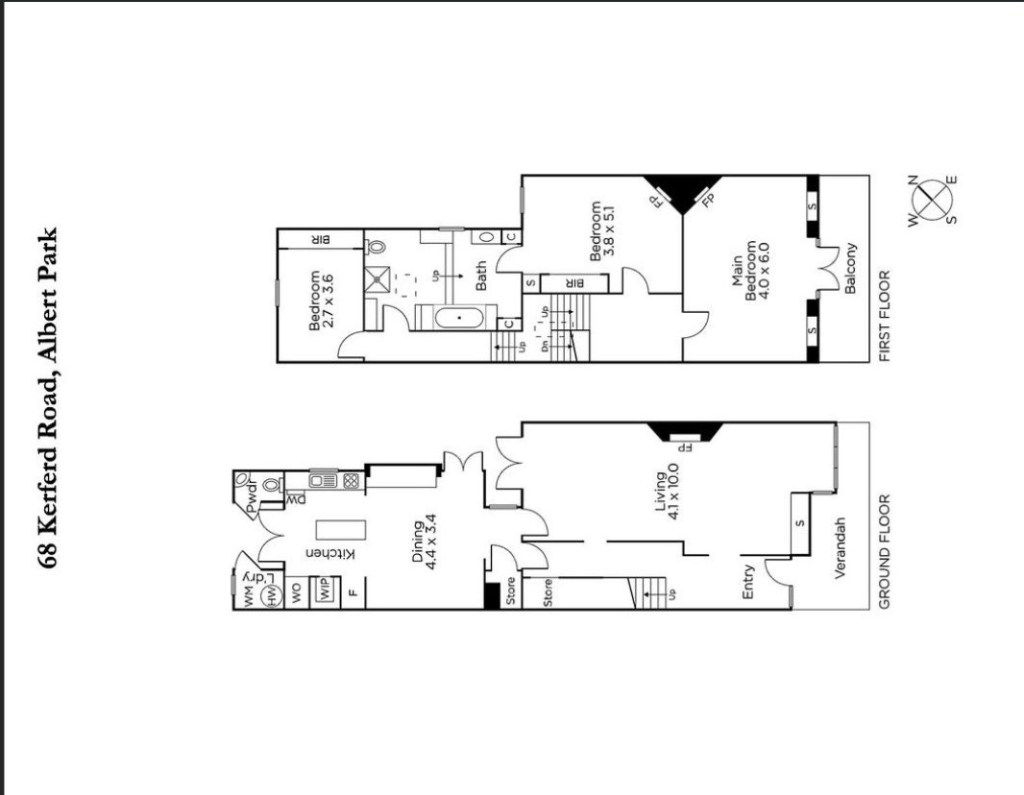
More on that will Edwardian on Kerferd Road that’s being renovated – wonderful fretwork with Art Nouveau whiplash shapes and a gable that sticks right out ! I’ve marked up the plan from the sale in 2022 showing whats left.
First time sold for 70 years apparently, that kitchen looks like 1950s. Kept the three main rooms but not the dining room, and not the second fretwork scroll in the hall, or maybe it’s coming back.














Looks a bit like maybe a school, but it’s a very unusual set of three terraces on Kerferd Road Albert Park in Arts & Crafts style, complete with shingles and solid timber posts and brackets. The style became popular just before WWI, but I can’t think of another place with the chunkiness of the posts and brackets.
I couldn’t find anything on them except a sale of the middle one in 2021, showing it had been altered a fair bit. 2nd pic is old streetview, which shows that the right one has had the timber posts recreated, or at least built to match the middle one, while the left one doesn’t have shingles at all, but could have lost them ages ago, then an Edwardian style verandah created in the 80s or 90s. Or maybe it was always different.











Jan 2026
A walk around a block of Albert Park off Kerferd Road – a modern house sticking up amongst Victorian timber cottages, somehow it’s ok; some have interwar alterations; prettier polychrome brick villas too; nice Edwardian with big roofed extension; bigger terraces on Kerferd Road; one that was once a bakery; and another well setback then subsumed into flats / guest house c1914?; and a cottage with an Art Deco front, and a terrace next door with a brick front addition looking a bit factory-like.


















