22 December 2025
This 7 level development for the corner of Rae Street and Alfred Street North Fitzroy just permitted is apparently the first to be approved under the ‘Great Design Fast Track’ pathway recently introduced by the State Government.
This allows larger developments over 5 levels in any zone other than Neighbourhood to go straight to the office of the Minister for Planning, with no possibility of appeal to VCAT. They should meet the objectives of the Design Principals, which outline great stuff like light and air, range of sizes, communal open space, adaptability, ESD principals, and the guide has lots of images of designs that are far nicer than most things being built (last few images). They say nothing about affordability however.
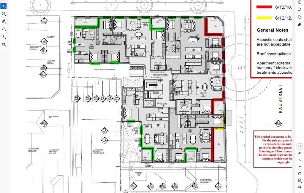
Apparently this one was workshopped with the Office of the Victorian Government Architect. But I now discover the guide is summarised as Clause 58, which has lots of minimum sizes and other standards, not as generous as those images imply. In this case, the Officers Report only uses Clause 58, and notes that there are 17 three beds, high ESD ratings, good natural light, minimum balcony sizes and so on. The communal open space is a large area on the south side, but most of it is covered by the building above, with only an area about 6x20m open, that won’t get any sun, but they say ‘it’s near the Edinburgh Gardens’, ha !
You might also think it’s just too big with terrace houses all around, but I’m not that fussed, it does set back a lot, a nice podium, but the side and rear will be visible, and possibly not attractive. It’s at one end of a Mixed Use Zone, so up to 8 floors is actually allowed!
Having said all that, I think it’s ok, and asking for nice communal open space in every big apartment block is going to be resisted. At least this one has a little bit of outdoor circulation. I do think the balconies should be bigger, but it’s still better than many new blocks. Architects @warrenmahoney.












