December 2025
Unusual set of flats on Beaconsfield Parade, Middle Park, which feature repeated bay windows over two/ three levels, a bit like Regency terrace houses – but probably more directly inspired by typical British semis of the 1910s and 20s (last pic) in turn inspired by the 1890s work of CF Voysey.
This has an HO but no research, but I found an ad from Oct 1915 describing them as new, which in fact makes them rather early for flats in Melbourne. Quite different in style from other pre WWI flats, typically in plain or Edwardian red brick. From Google maps they look like three independent buildings, in sets arranged a bit like terrace houses, but I think all built together, but possibly each with different names. The whole lot are known as Boniedoun, but the middle four were once called Ormistoun, as in the pic from 1974, on a balcony now gone.
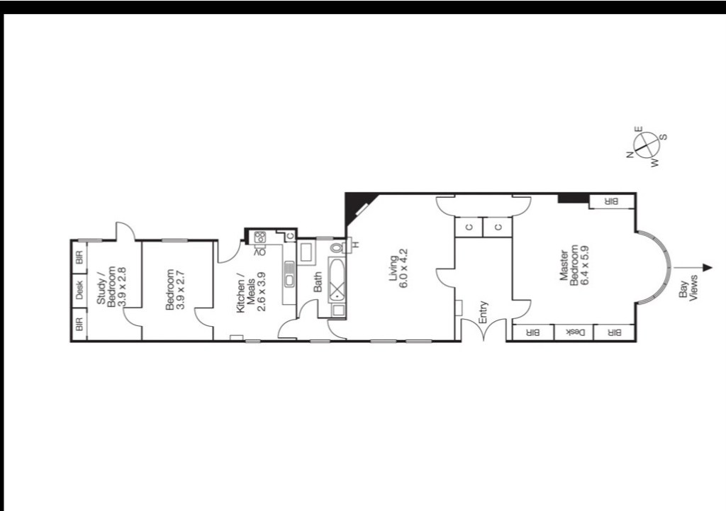
Real estate pics show the middle ones just simple two beds, while the end ones are more spacious, and there’s a nice common garden to rear, away from the sometimes arctic sea breezes.














