January 2026
The really very grand Victoria Hotel on Beaconsfield Parade on the corner of Kerferd Road.
It was built in 1888 for Mary McGregor when there was virtually nothing here, but it was the peak of the boom. The pier was built the next year, so I’m sure that helped but maybe it wasn’t such a great investment.
The architect was Richard Speight, who didn’t seem to do much else, and here he piled on loads of effect on the front and corner, with that marvellous tower /turret, but then the rear wing is just face brick, as if it was behind instead of on the side. I think he’s the same Speight that came out to be a Railway Commissioner in 1884.
There’s some great old photos, the 1907 one from the pier shows how little there was around it. By the 70s it had lost the turret, but Heritage Victoria says it was also rebuilt then. In the 80s it was ‘The Pink Vic’ (crowd shot) and in 1990 it was listed by Heritage Victoria – the next pic is from them and shows the tower was rebuilt badly by then. Don’t know when it was done again, probably c2000 when it was converted into apartments. I remember that from my at the @nationaltrustvic, I was concerned about those balconies and the loss of the interiors, but apart from the stairs and arches around it not sure anything else notable was left.
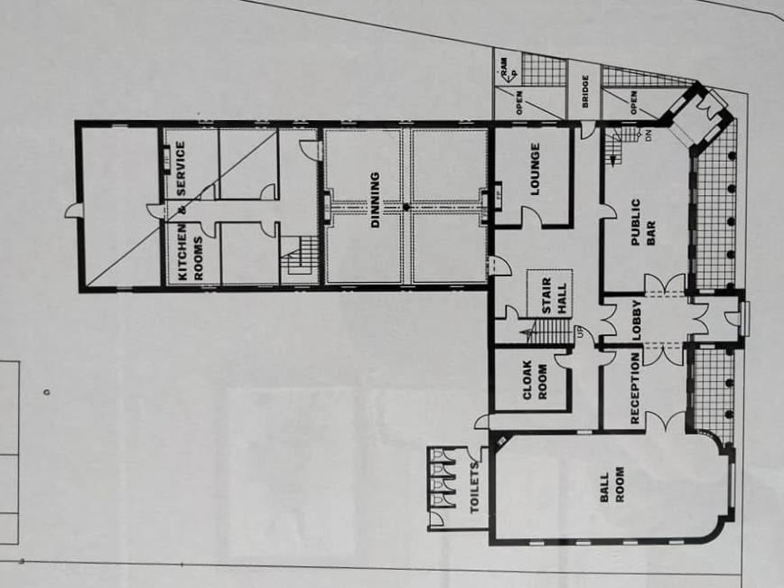
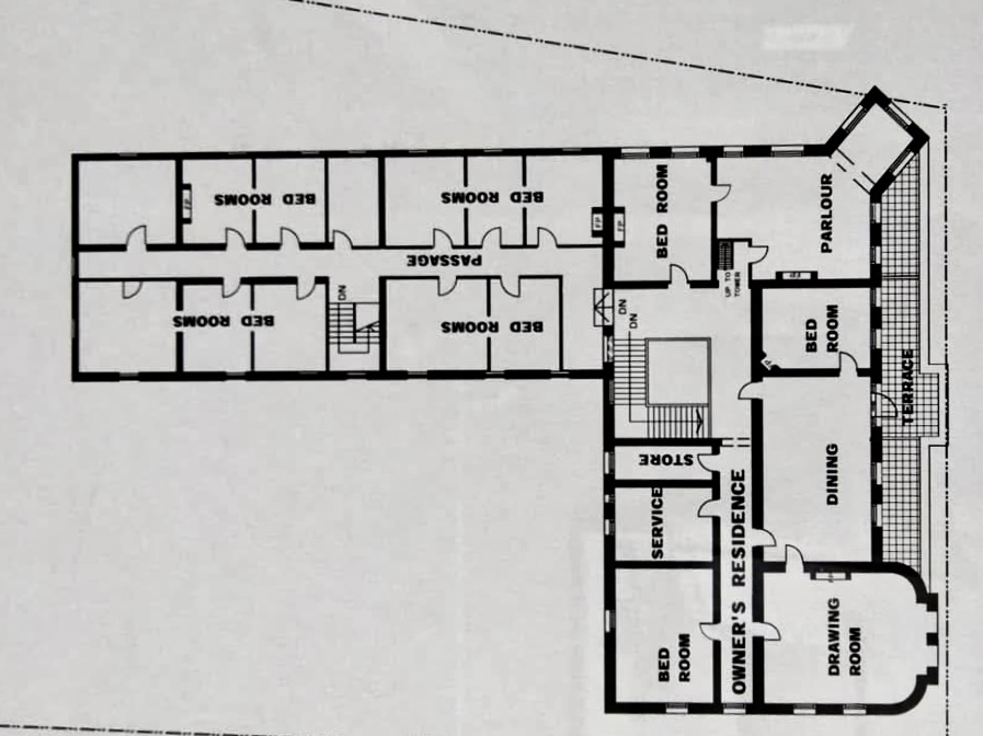
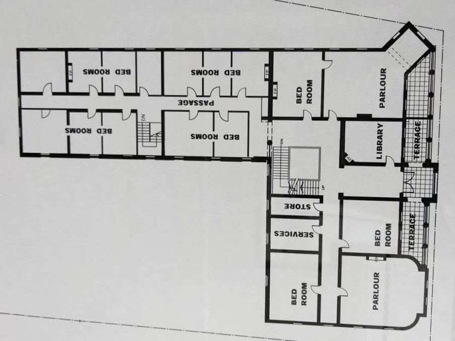
I found the plans on Facebook, which I guess show the original layout, grand flats up front, small rooms out back. There’s a very nice looking restaurant on the ground floor now.
















It’s worth mentioning it was built? as a temperance/coffee palace. I’ve no idea what the interior is like.
LikeLike
It wasn’t a coffee palace according to the heritage listing.
LikeLike
The location and view over the beach and bay are perfect. Whoever selected the site originally made an excellent choice. But does the constant traffic made an endless noise?
LikeLike
That is magnificent! And I must follow up on the lead light / stained glass in one of your images!
LikeLike