Repost this day 2019:
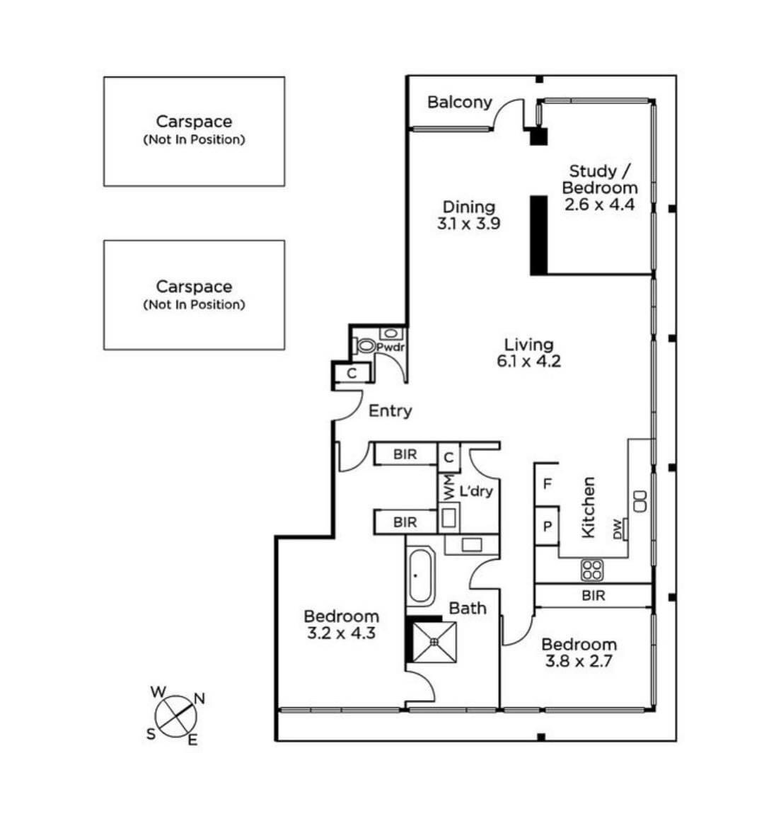
Miami Towers, #SolSapir, 189 #BeaconsfieldParade, #MiddlePark, 1972. It has an twin in Armadale and a taller sister further down the street. The panels might be precast, with little curved edges, but they’re separated by curious vertical metal channels that poke down below the first floor; which involves a lot of cantilevering and some chunky columns, though the effect is undermined by the planting. They seem to carry up through thicker walls rather than more columns. Like his other #apartmenttowers, the lounge is kind of inside, looking either straight out or to the side, with a study/bed in the corner, and it’s all solid up to balustrade height, you wouldn’t do that now.
Sol did virtually every tower along Beaconsfield Parade, repeating types but not next to each other- heres three #SolSapir in a row – Miami Towers, 1972, Bayside Plaza, 1975, and then Hobson’s Bay Tower, 1980.








