1 February 2021
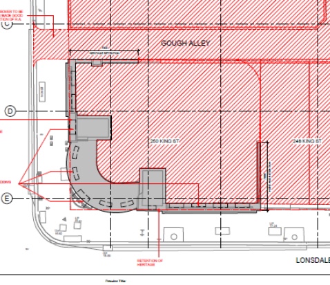
A lot of #ArtNouveau details under the cream paint on the 1915 #KilkennyInn, cnr Lonsdale and King, probably showing the hand of #RobertHaddon, doing work for #SydneySmithAndOgg, who did many many pubs 1900-1920s. The circular open corner is also very unusual – and about all that would be left if the current quite dull office tower proposal gets approved ! Which it shouldn’t, since the newish #heritageguidelines clearly say no facadism and in fact for ‘significant’ graded places like this nothing much should be demolished ! Even if was contributory, they’re supposed to keep a room depth or 8-10m, not just front walls and what looks like just the verandah and the towers. Also, there’s the nice Paramount House next door, built in 1929 for the film company, and proposed for heritage listing (if this doesn’t go ahead). The best pics I could find are actually streetview, the B&W from @library_vic 1960s, and the plans by @coxarchitecture from the application.






Another partial victory. Instead of just keeping the two street walls and the verandah of the 1915 Kilkenny Inn on King & Lonsdale as first proposed, they’re now keeping 7.5m depth, including (some) internal walls ! Which hopefully means one fireplace and what looks like an original opening, and the upstairs corner room which reportedly has ‘shamrock themed’ plasterwork. I like to think this is all because of the letter I drafted for @melbourne_heritage_action, but the CofM heritage advisers opposition might have helped too. The new tower will still loom over (but the very first designs by @coxarchitecture were even worse!) and we will lose the short bluestone paved #GoughAlley, and the nice 1920s Paramount Office next door, but it’s a win given that planning started well before the new heritage guidelines (which would in fact mandate far more retention). An example of the 80m high as-of-right on corners leading to developers /designers wanting to fill up the available area – but really in this case narrower and taller much better all round than this compromise- but I guess shorter and wider is more remunerative.









May 2022:
Big fire at the long closed Goldfinger’s on Lonsdale Street – the corner is the 1915 Kilkenny Inn, of which one room depth on each side was to be kept as part of an approved office development. Being a ridiculous optimist, it looks to me like the fire was well behind, with no blackened smoke marks on the corner section. Pretty sure at least the facade is safe, and the leadlight windows still there. The decorative plaster work in the first floor corner room might be destroyed by water though. And this was going to be the first example of better than facadism, keeping more than just the front walls ! First image The Age.


5 September 2022
So following the fire in May at the 1915 Kilkenny Inn, cnr Lonsdale & King, which was about to be redeveloped keeping one room depth on both sides, the developers say they are keeping to that, and will ‘restore’ the interiors – though the only interesting original feature left was the shamrock pattern plaster cornice in the upstairs corner. But better than using the fire as an excuse to just keep the front walls! Pity about the pointy office block to be plonked above it though. 1st + 2nd images post fire by Graeme Butler, rest from the Internet or planning reports.







8 May 2024
Poor old Kilkenny Inn was in the Age today, with the @cityofmelbourne asking owners Hickory to create a park, since they’ve given up on / havnt started their approved office building after clearing the site in late 2022. That was also after a fire, which was described as having gutted the building, which I think was mostly in next door, but lots of black smoke damage. It’s also reported as ‘just a facade’ but from what I can tell, poking around there, they’ve only demolished a bit more than originally permitted as per sketch plan – the corner room, which has/had notable decorative plaster upstairs, is still there. The northern wall on the King Street side has however gone. So I’d much rather they were asked to fix up the building, maybe a temporary pub ? The proposed tower was also setback behind the L shaped retained portion, so actually this was a much better design than just keeping two walls and then going virtually straight up, which newish guidelines would not allow now. My photos from last month.





