Repost 2019:
The crazy #balustrades that #EsmondDorney used on his early 1930s flat developments are the clearest link to his having worked in the office of #WalterBurleyGriffin. The flats themselves are sometimes called Prairie Style, but I think that’s a stretch. This block, Garden View, is in #BlessingtonStreet, #StKilda, built 1934.








More pics 2024





19 May 2024
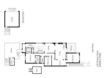
Mena Court – a nice block of flats corner Nimmo and Danks Streets, Middle Park. Free I can tell from the angular balustrades and the way the tapestry brick is done in lines, in panels, that this is by Esmond Dorney, who did quite a lot of flats in this style in the early 30s, before he went more Art Deco, as in Windermere in Elwood. After WW2 moving to Tasmania he had a third phase of really quite striking modern houses. This block is also interesting because, like Glamis Towers, each flat has a separate entry, and I’m pretty sure it’s made out of an Edwardian house, with that distinctive angled corner entry, which still has the Edwardian door! The flat upstairs is the largest, with 3 bedrooms and quite a grand lounge, with columns. Downstairs out back is only 2 beds, found a plan and photos from a sale ad 10 years ago – but more recent rental ads show its been changed a lot; I think the kitchen is now a small second bed, and the two main rooms combined into a lounge kitchen dine. So partly original bathroom and the fireplace in the photo now gone.









