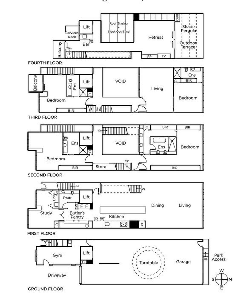
Spotted in Wellington Street St Kilda – and I like it ! Stacked shiny boxes. A bit crazy big for a house, but built for builder David McCallum and partner and children and their partners – some of the bedrooms are the size of a one bed flat or studio, but they shared the huge kitchen. The architect was @mattgibsonad. Finished in 2015, they sold up in may 2021 for a reported $6.7mill. There seem to be more and more people with many millions to spend on their homes – guess it’s the world wide scale of business these days, and in the cities, a concentration of wealth, driving up property prices and in turn accumulated wealth. Though in this case it housed more than one family.













