Original post 13 February 2022:
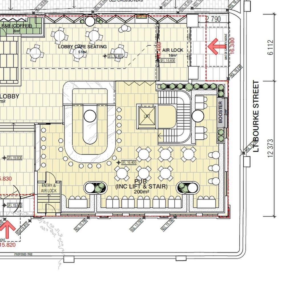
The Great Western Hotel in King Street was built in 1861, but missed out on heritage listing until it was included in the latest review, but then excluded because there was already a demolition permit 😢 – then they compromised by keeping just two facades. Then a new developer and a bigger site, and now it’s two facades, short bits of side walls, and it’s going to be ‘a pub’, but pretty much stuck on to a big tower.
Designed by @fenderkatsalidis – anyone know someone there ? It could be better, for instance more setbacks, and rebuilding the original windows as in the council archive drawing, instead of just somewhat altering the existing ones (which is much better though than the big openings of the previous scheme). I’m sad about losing the great bluestone rear walls too, and who knows how long it will be a pub? Last image is the previous scheme.













Streetview from May 2023 shows they’ve started construction :

February 2026
Facadism always looks worst after the demolition; sometimes it looks ok afterwards but not this one ! My pics are what’s left of the 1861 Great Western Hotel in April 2024, and I went past last Xmas and still no construction.
Update : they’ve also kept the wall of an Edwardian warehouse which also was not heritage listed. I’m not totally sure but if the permit lapses, maybe a new design would have to treat the facades better.








