Repost 2015:
The remarkable towered house on #alfredcrescent #northfitzroy – actually a complete do-over of a typical 1880s #terracehouse in c1905 in an exotic melange of #artsandcrafts #artnouveau maybe some #Moorish a whole lot of #rustication and a #cupola! Designer unknown.
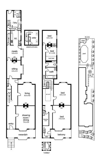
Found interior shots from the last sale in 2015, I’m told this was the result of renovations in the 90s, including a Victorian style bathroom.








