26 September 2021
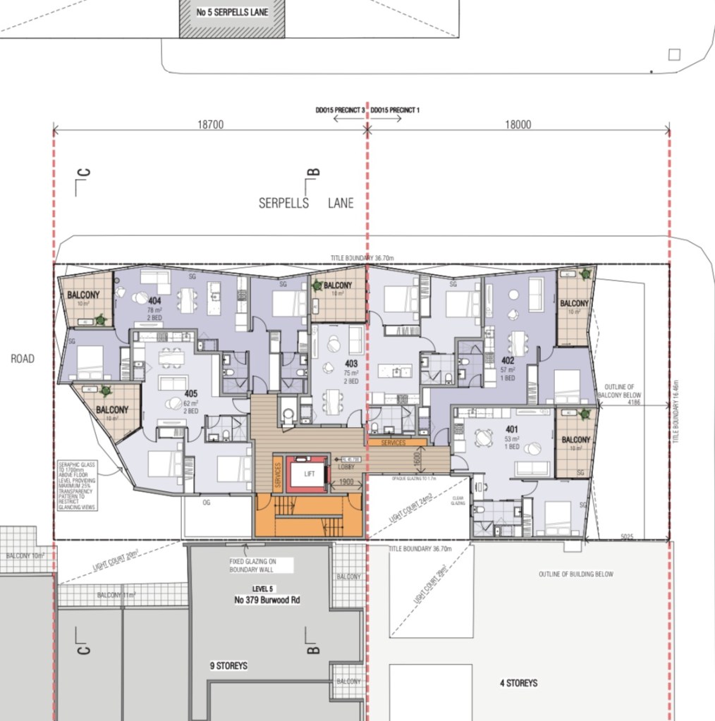
I do love the #TudorRevival shops scattered about town, this one in #BurwoodRoadHawthorn quite interesting, being all #halftimbered, with propped bay windows, more like the medieval originals than many others – I tried to get it #heritagelisted when @cityofboroondara finally protected the glenferrie rd shops back in 2011, but this was disconnected by two wide non-listable places, so didn’t make it – and now of course there’s a proposal to replace it 😢 It’s called Arcade, though it doesn’t have an arcade in it; it’s by @ascuiandco, and at least the flats seem to be spacious, with big balconies, and it steps back a lot, which I good for the north sides of streets, but rarely happens. Photos from 2015. Update: streetview shows it being demolished in Dec 2021, and I’m told construction is now well advanced. And people still remember Penang Coffee House that was here a long time ago.





